48-TUB-A

TUB-A

Aufstockung Hauptgebäude TU Berlin
Berlin-Charlottenburg

Ausschreibung zur Aufstockung des denkmalgeschützten Altbauteils des Hauptgebäudes der Technischen Universität Berlin.

Bauherr

Technische Universität Berlin
Straße des 17. Juni 135, 10623 Berlin

Objektplanung

Pitz & Hoh
Architektur und Denkmalpflege GmbH
Rheinstraße 45, 12161 Berlin

Leistung

LPH 6 nach HOAI

Bearbeitungszeitraum

Juli 2005 bis Dezember 2006

Projektgröße

BGF ca. 2.260 m²

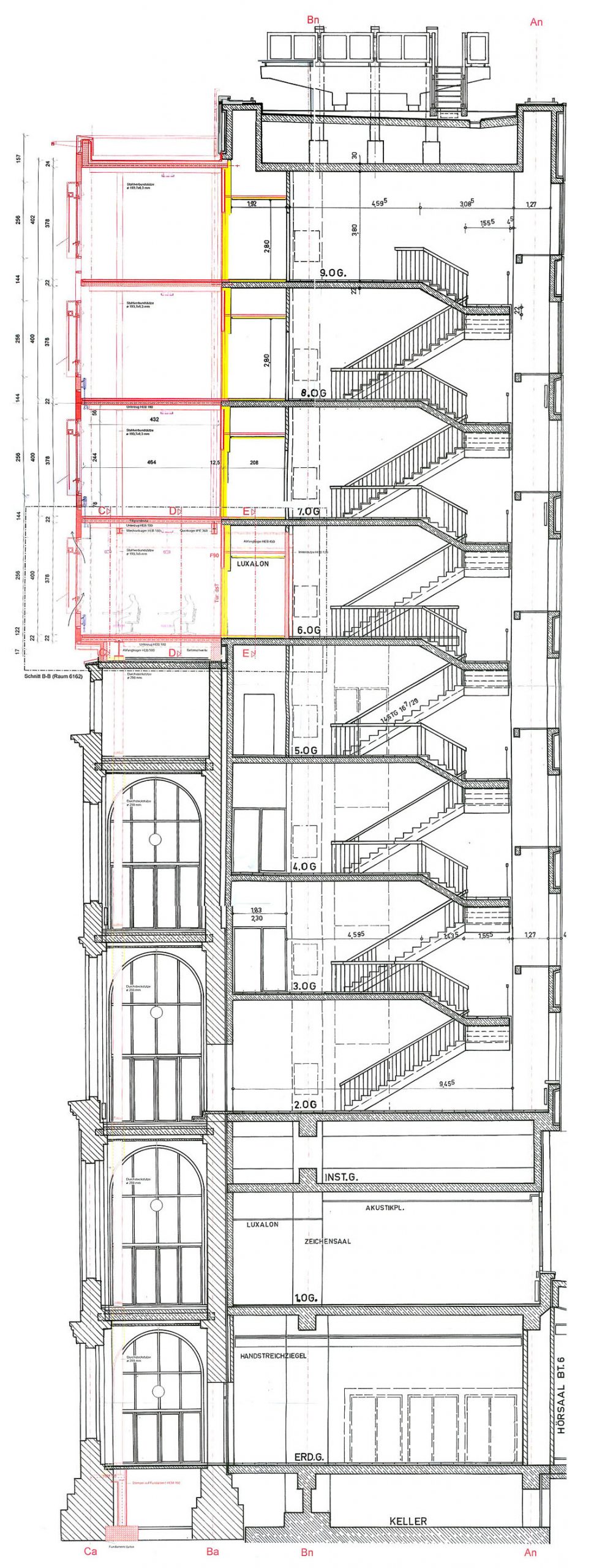
Zur Schaffung von zusätzlichen Büroräumen für die Verwaltung der TU Berlin wurde der denkmalgeschützte Altbauteil des Hauptgebäudes vor der Südseite der Hochhausscheibe aufgestockt.

Die Aufstockung erfolgte als Pfosten-Riegel-Konstruktion mit horizontaler Gliederung in Korrespondenz zur Altbaufassade und der Hochhausscheibe von 1970.