KEH-H7
Sanierung Haus 7, Königin Elisabeth Krankenhaus Herzberge
Berlin-Lichtenberg
Sanierung und Ausbau zur nachhaltigen baulichen und organisatorischen Umstrukturierung des unter Denkmalschutz stehenden Hauses 7, der Abteilung für Kinder- und Jugendpsychiatrie.
Bauherr / Auftraggeber
Evangelisches Krankenhaus
Königin Elisabeth Herzberge gGmbH
Herzbergstraße 79, 10365 Berlin
Planungsleistung
LPH 2 bis LPH 8 nach HOAI
Bearbeitungszeitraum
August 2006 bis Oktober 2009
Projektgröße
BGF ca. 4.630 m²
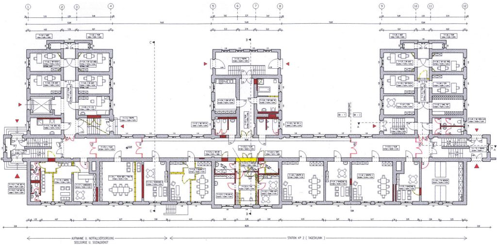
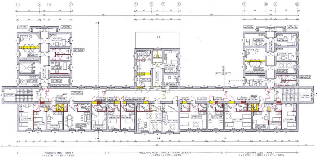
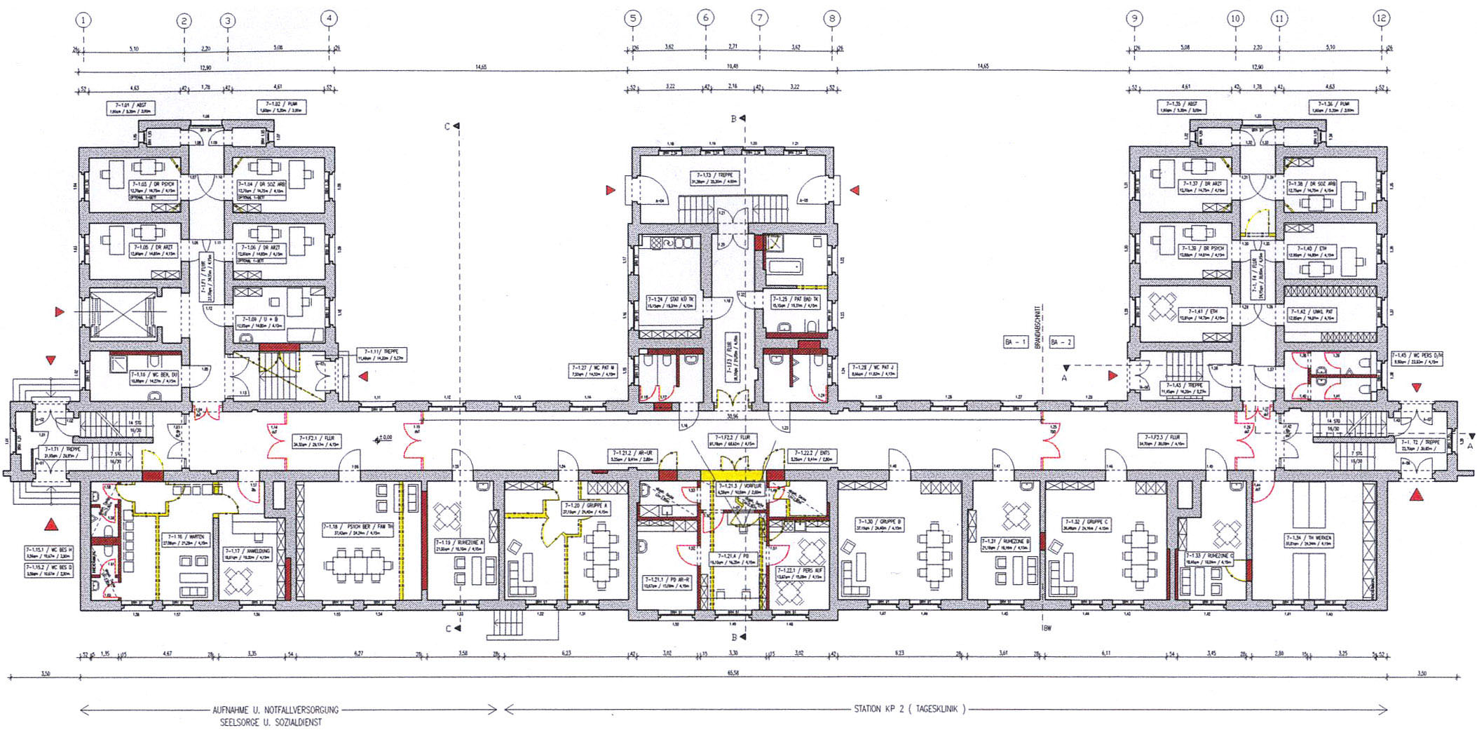
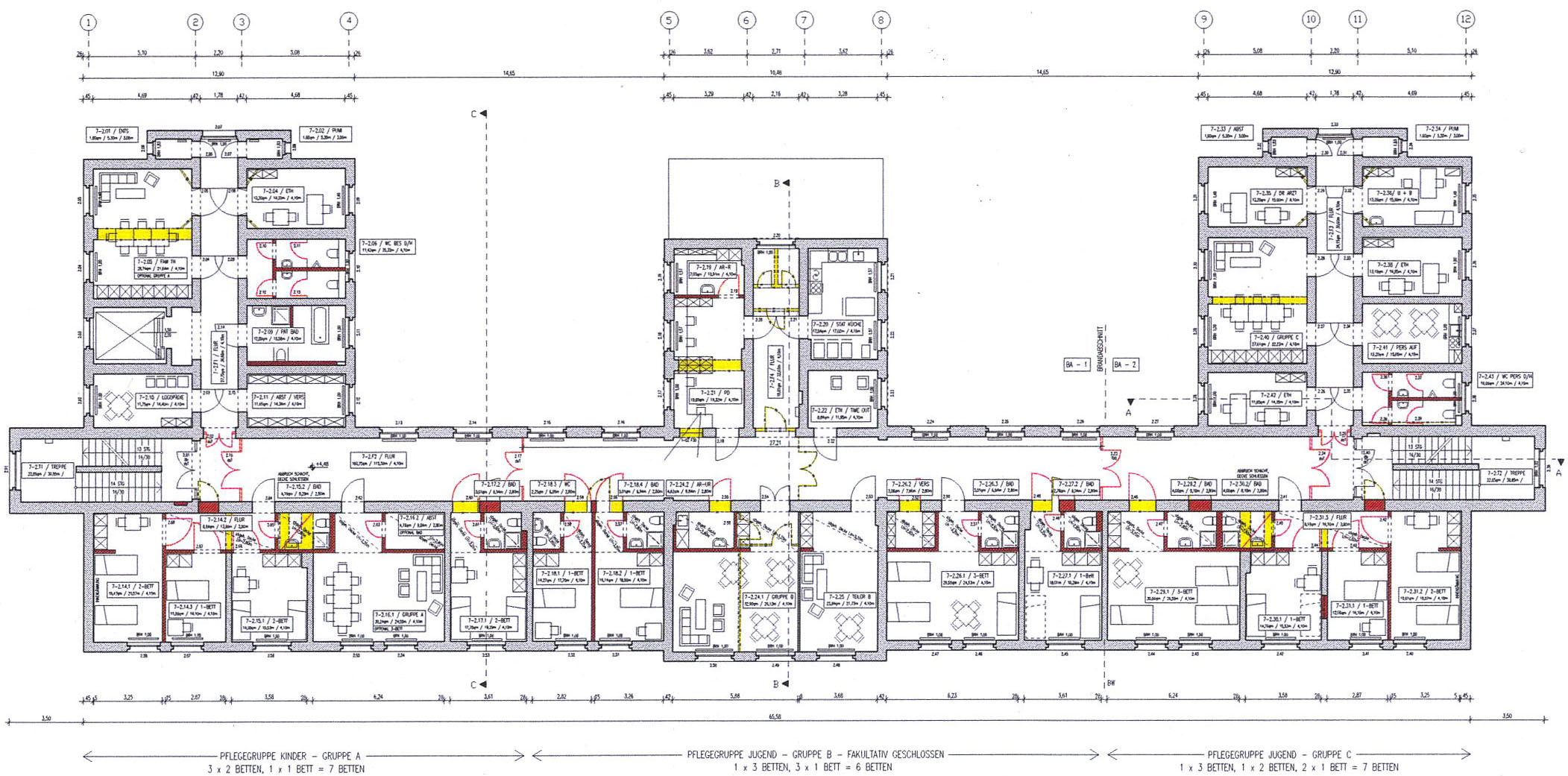
Gemäß Krankenhausplan hat das KEH die kinder- und jugendpsychiatrische Vollversorgung für die Region Ost mit 40 Betten sicherzustellen. Diese ist im Haus 7 untergebracht.
Mit der Sanierung von Haus 7 konnten weitere Ergebnisse der 1993/94 erstellten Zielplanung umgesetzt werden.
Die Aufgabe war es demnach mit dem Entwurf ein Konzept zur nachhaltigen baulichen und organisatorischen Ver-besserung des Bereiches der vollstationären Versorgung von 20 psychiatrischen Patienten (KP 1) vorzulegen.
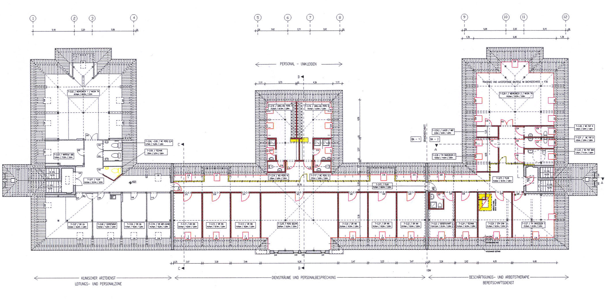
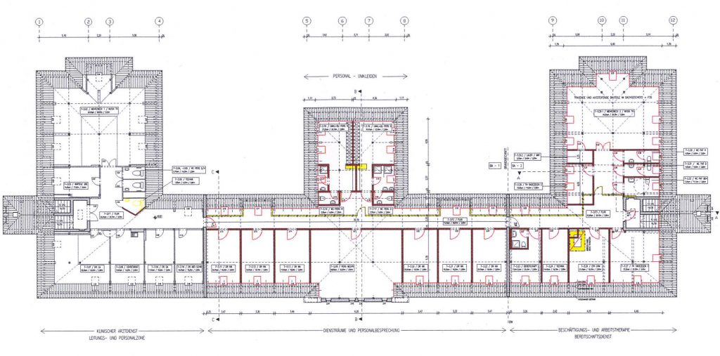
Die Aufgabe bestand weiterhin darin, das Gesamtkonzept des Hauses entwurflich zu überprüfen und die notwendigen baulichen Maßnahmen zur Umsetzung zu erarbeiten.
Auf der Grundlage des Bewilligungsbescheides der Senatsverwaltung für Gesundheit, Soziales und Verbraucher-schutz vom 28.09.2006 wurden die Vorentwurfsinhalte inhaltlich bestätigt und die Erstellung der BPU n. § 11 KhföVO zum Umbau und zur Sanierung des Hauses 7 ausgearbeitet, baufachlich geprüft und feigegeben.
Da die Mittel für die Förderung der Baumaßnahme begrenzt waren und somit nur eine Teilsanierung des Gebäudes abdeckten, wurden vom KEH zur Optimierung der Gebäudenutzung eigene Mittel aufgewendet, um eine Sanierung des vollständigen Objekts vorzunehmen zu können.
Diesem Umstand wurde bei der Vergabe der Bauleistung Rechnung getragen, indem je Gewerke zwei Lose vergeben wurden.
- A24architekten+ingenieure
- 030 76805763
- dessauerstraße 22, 12249 berlin
- info@a24architekten.de