LIN

Sanierung von Reihenhäusern der Lindenhofsiedlung
Berlin-Schöneberg

Entwicklung eines Gesamtkonzeptes für die denkmalgerechte Sanierung der Einfamilienreihenhäuser einschließlich Umbau und Instandsetzung des exemplarischen Gebäudes Arnulfstraße 12 als Musterobjekt.
In der Folge wurden kontinuierlich ingesamt 19 Objekte saniert.

Bauherr / Auftraggeber

GeWoSüd
Gemeinnützige Wohnungsbaugesellschaft Berlin-Süd eG
Eythstraße 45, 12105 Berlin

Planungsleistung

LPH 1 bis LPH 9 nach HOAI

Bearbeitungszeitraum

August 2007 bis Juni 2016
LPH 9 bis Juni 2021

Projektgröße

BGF, Reihenmittelhaus ca. 140 m²

Die Lindenhofsiedlung

Die Lindenhofsiedlung in Berlin-Schöneberg wurde 1919 von dem damaligen Stadtbaurat Martin Wagner im Geiste einer Gartenstadt geplant und in der Folge errichtet. Im Krieg wurde die Siedlung durch Bombenangriffe stark beschädigt und teilweise zerstört.

1953 erfolgte die Wiedererrichtung unter Leitung der Architekten Sobotka und Müller. Mit diesem Wiederaufbau wurden außerdem Veränderungen vorgenommen, die dem Geist der Zeit entsprachen: Vereinfachung der Fassaden durch das Entfernen von Friesen, Gesimsen, Fensterfaschen, Rankgerüsten, usw. sowie Teilrückbau von An- und Vorbauten.

Dieser in einer Handschrift durchgeführte Wiederaufbau wurde in den folgenden Jahrzehnten in einem schleichenden Prozess so verändert, dass sich heute ein recht uneinheitliches Bild ergibt. Die Veränderungen zum Einen, sowie die fortschreitende Gebäudealterungen zum Anderen haben dazu geführt, dass sich bautechnische Schäden eingestellt haben. Die GeWoSüd plant aus diesem Grund mittelfristig die Sanierung des Gesamtbestandes.

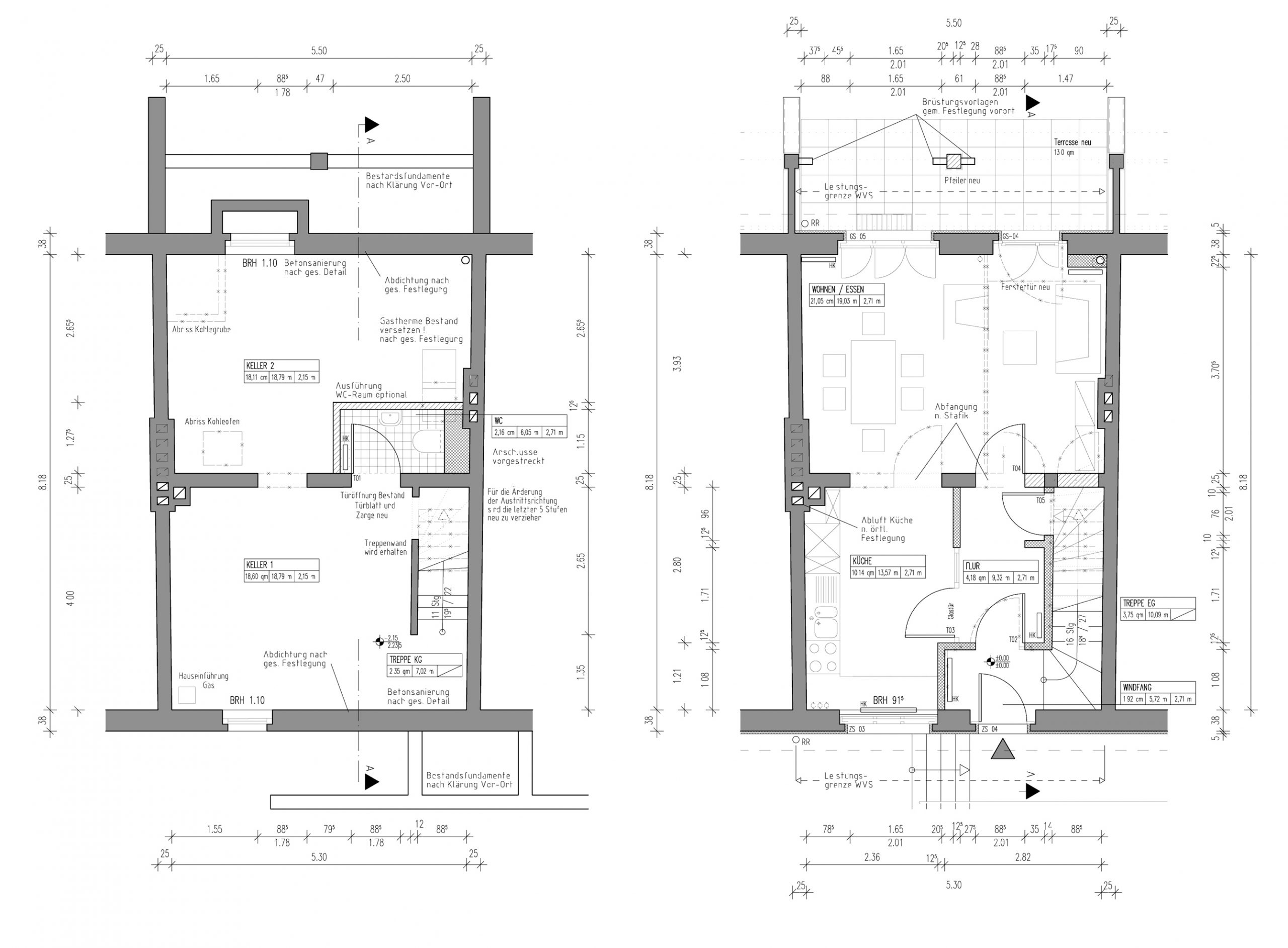
Kellergeschoss/ Erdgeschoss

Der Grundriss des Kellergeschosses bleibt weitgehend unverändert erhalten. Der Zugang zum Keller wird zur Grundrissoptimierung des Erdgeschosses verlegt. Dazu wird der Treppenlauf mit einfachen Mitteln verändert.

Im Erdgeschoss wird der Zugangsbereich neu gestaltet. Die Küche wird grundlegend neu erstellt und orientiert sich nun zur Zugangsseite.

Über den neuen Flurbereich im Erdgeschoss lassen sich die Küche, der südliche Wohnraum und der Kellerzugang separat erschließen. Der zur Gartenseite gelegenen Wohnraum erstreckt sich über die gesamte Hausbreite und ist über einen großzügigen Durchgang mit der Küche verbunden.

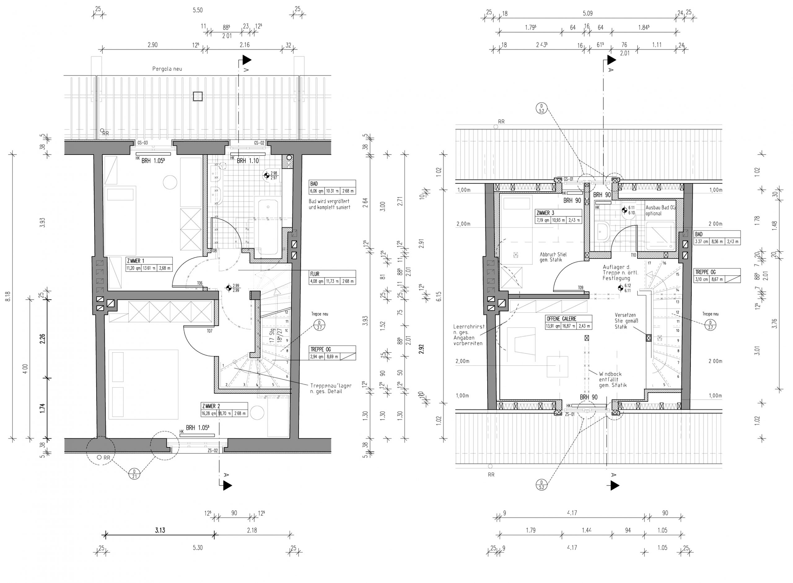
Obergeschoss/ Dachgeschoss

Das Obergeschoss bleibt weitgehend erhalten. Das vorhandene Bad wird modernisiert und umgebaut und der Grundriss entsprechend den Erfordernissen umgestaltet.

Der Zugang zum Dachgeschoss erfordert eine neue Treppe. Das neu herzustellende Duschbad wird optional vorgeschlagen. Die natürliche Belichtung und Belüftung erfolgt über Gaubenfenster. Ein weiteres Zimmer und ein zum Treppenraum offener Galerie-bereich sind vorgesehen. Die Hüllfläche des Daches ist bereits weitgehend saniert worden. Als Vorraussetzung für den Dachausbau zu Wohnzwecken wird je Dachfläche eine Gaube neu erstellt. Die Gestaltung der Gauben orientiert sich an der aus den Bestandsunterlagen ersichtlichen ursprünglichen Ausführung der historischen Dachgauben.

Ausbau

Die Materialien der Ausbauten sind in normalem wohnungsüblichem Standard berücksichtigt. Fußböden erhalten Linoleumbeläge, im OG werden die vorhandenen Dielen und die Treppenkonstruktion geschliffen und lackiert. Sämtliche Räume erhalten Holzfußleisten. Die Fliesen der Bäder sind türzargenhoch vorgesehen.

Fassade

In Anlehnung an den für die Lindenhofsiedlung 2004 erstellten Denkmalpflegeplan wird die Fassade mit einer außenliegenden mineralischen Wärmedämmung und einem hellen mineralischem Putz ausgeführt. Die Oberfläche wird als Kratzputz ausgeführt, wobei die historischen Fensterfaschen an der Gartenfassade in Glattputz wiederhergestellt werden.

Pergolen

Mittelfristig sollen bei allen Reihenhäusern der Arnulfstraße die gartenseitigen Pergolen in Anlehnung an das historische Vorbild wiederhergestellt werden. Die Untere Denkmalschutzbehörde befürwortet die Neugestaltung der Pergolen und sieht die Maßnahme als Chance, die Einzelelemente im Außenraum mit einem „altbekannten“ Gestaltelement neu zu verbinden.

Um dieser Funktion gerecht zu werden, sollen die Pergolen in ihrer Gänze einheitlich erstellt und auf den vorhandenen bzw. teilweise zu ergänzenden Pergolenwänden aufgelagert werden. Den heutigen Ansprüchen entsprechend, und zum Schutz der Terrassenbereiche wird die Konstruktion überkopfverglast.