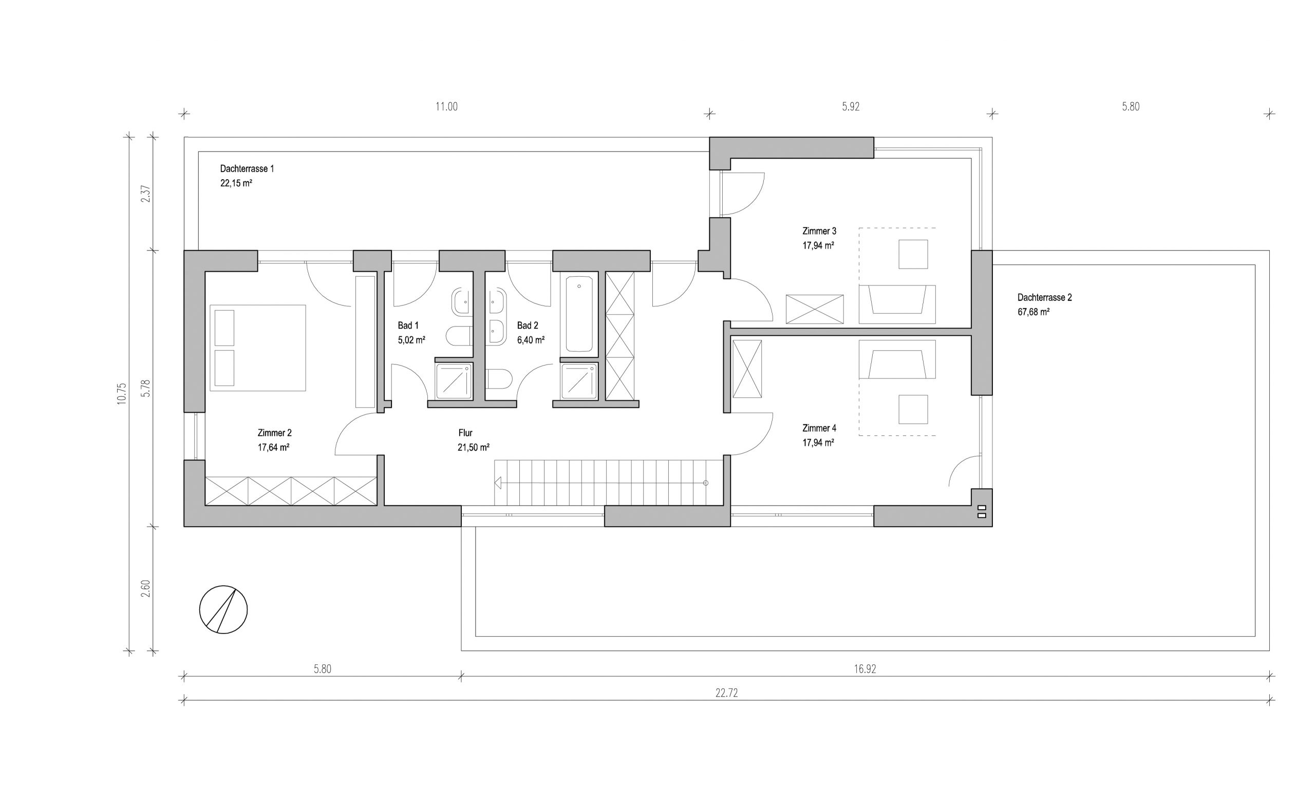
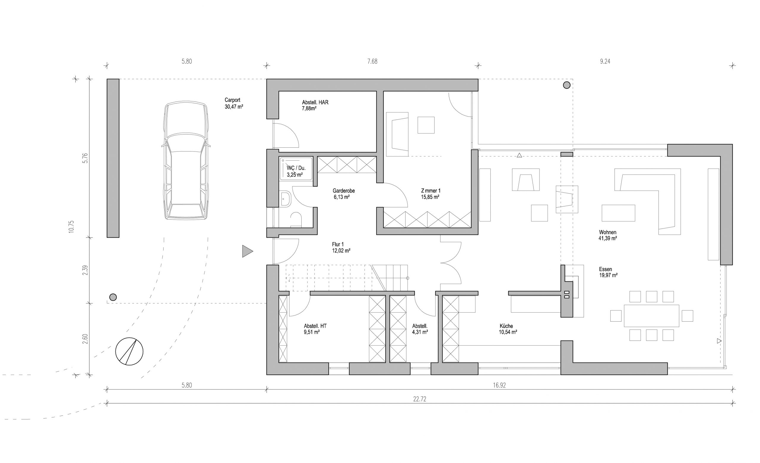
BART EinfamilienwohnhausBudapest Entwurfsplanung zum Neubau eines Wohnhauses in Budapest Bauherr / Auftraggeber privat Planungsleistung LPH 1 bis LPH 3 nach HOAI Bearbeitungszeitraum Januar 2008 bis November 2009 Projektgröße keine Angaben A24architekten+ingenieure 030 76805763 dessauerstraße 22, 12249 berlin info@a24architekten.de Impressum